В этом объекте, спроектированном украинскими архитекторами студии интерьеров Павлом Войтовым и Максимом Дощинским из студии ZOOI, учтены функции жилого дома и офиса. Владельцу нужно было пространство, объединяющее жилую зону и рабочую. Пожелания заказчика также сводились к установке в доме системы централизованного управления «smart home». С учетом всех пожеланий архитекторами было создано компактное и умное объемное решение, дополненное организованно контролируемой системой «умный дом» мультимедиа и сауна. Архитекторы представили проект с конструкциями и остекленными зонами, максимально открытыми в окружающую среду.
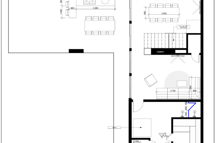
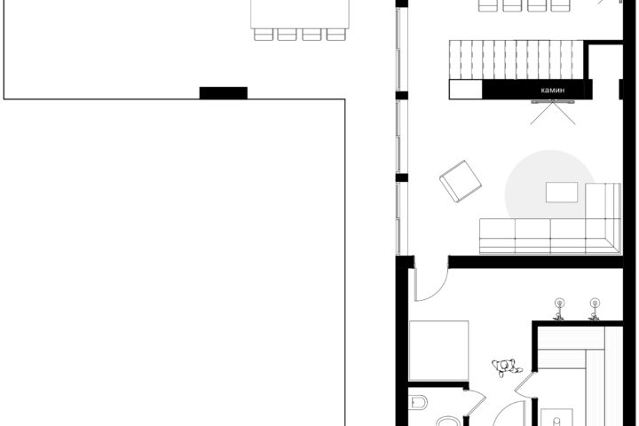
Благоустроенный ландшафтный участок с бассейном составляет единое целое с домом. На первом этаже привлекательная открытая площадка для отдыха, совмещающий металлокаркасную сварную конструкцию и деревянную террасу. Пространство open-space, разделенное дровяным камином, выходит к бассейну, отделенному от дома зеленой полосой. Открытость дома в ландшафт демонстрирует кухня, которая по желанию благодаря раздвижным системам легко объединяется с террасой, где устроена зона для готовки. На первом этаже также размещается гостиная с проектором, тренажерный зал и сауна с выходом в душ и зону купели. Второй этаж отдан спальне с гардеробом. Интересным решением стала форма кровли дома, запроектированная по принципу «взаимности дизайна» с остальными постройками поселка с целью органично вписаться в существующую инфраструктуру застройки. Фасады дома отделаны высокопрочными hpl панелями и штукатуркой. В целом дом как внешне, так и внутри представляет собой компактный вариант особняка, приемлемого для жизни и работы.


























