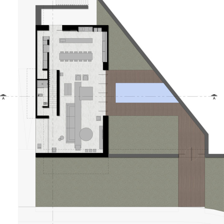
Этот большой бразильский дом площадью 410 кв. метров спроектирован архитектурной фирмой Studio Guilherme Torres в 2009 году, но до сих пор привлекает внимание почти всех жителей в Лондрине. Проект был создан с учетом сложного рельефа и преимуществ расположения объема на самой высокой точке местности. Сооружение состоит из перекрестных блоков, идеально подогнанных друг к другу. В доме впечатляющие открытые интерьеры имеют высокие потолки и стеклянные стены, благодаря которым естественное освещение наполняет все внутреннее пространство. В минималистских интерьерах современная мебель. Кухня выполнена в сильных контрастных тонах желтого и черного. Деревянная лестница поднимает на следующий уровень, где расположено современное и уютное пространство спальни с контрастным декором. Внешние формы дома и оформление внутреннего пространства говорят о нетрадиционном подходе в проектировании бразильских архитекторов.
- byalpine
- Posted on
Пов'язані теми
Вам також може сподобатись
Підсумки 2021 року від журналу “Загородная недвижимость”
- byНаталья Кушнир
- Posted on
У Києві відбувся Новорічний Metronome за участю кращих українських архітекторів і дизайнерів
- byНаталья Кушнир
- Posted on
У Києві пройде щорічний міжнародний форум Smart Building
- byНаталья Кушнир
- Posted on
У Києві проведуть Новорічний Metronome за участю кращих арітекторів і дизайнерів України
- byНаталья Кушнир
- Posted on
У Києві нагородили кращих дизайнерів інтер’єрів 2021 року
- byНаталья Кушнир
- Posted on
У Києві нагородять кращих українських дизайнерів інтер’єрів
- byНаталья Кушнир
- Posted on
У Нью-Йорку пропонують орендувати «квартиру Керрі Бредшоу» з серіалу «Секс і місто»
- byНаталья Кушнир
- Posted on
«Мій дім – мій готель», – архітектор розповів про актуальні бажання покупців житла
- byНаталья Кушнир
- Posted on




























